$486,897 | 4 beds | 3 full baths | N/A half baths | 2,628 sqft

$486,897 No Recent Price Change
811 Big Cedar Dr.
Loris, SC 29569
  • 4Beds
  • 3Full Baths
  • N/AHalf Baths
  • 2,628SqFt
  • 2025Year Built
  • 0.24Acres
  • MLS# 2514019
  • Residential
  • Detached
  • Active Under Contract

  • Approx Time on Market3 months, 27 days
  • AreaLoris To Longs Area--South of 9 Between Loris & Longs
  • CountyHorry
  • Subdivision The Willows

Overview

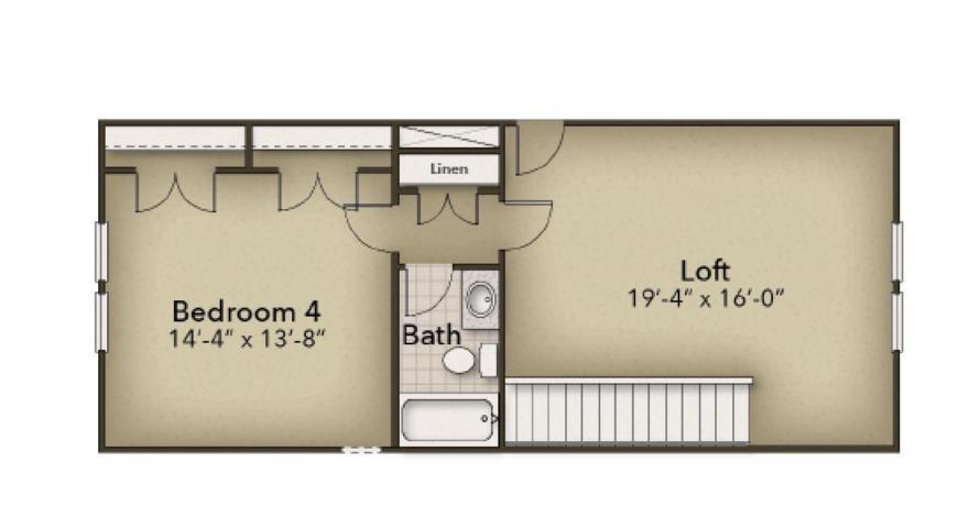
Step in from the Shorebreaks covered front porch to find 2 bedrooms and a full bathroom leading to an open kitchen, dining, and great room area finished with a beautiful tray ceiling. Breeze through sliding glass doors onto a large covered porch, ideal for warm summer evenings or afternoon get-togethers. Through the foyer, youll find a large drop zone and laundry area. Drop-off beach chairs in the convenient storage space just inside the 3 car garage, as well. Beyond the open living space, find a stunning owner's suite complete with a tray ceiling, enormous walk-in closet, double vanity, and a seated shower. The 2nd floor offers a spacious loft area, full bathroom and another large bedroom!



Agriculture / Farm

Grazing Permits Blm:  ,No,

Horse:  No

Grazing Permits Forest Service:  ,No,

Grazing Permits Private:  ,No,

Irrigation Water Rights:  ,No,

Farm Credit Service Incl:  ,No,

Crops Included:  ,No,

Association Fees / Info

Hoa Frequency:  Monthly

Hoa Fees:  205

Hoa:  Yes

Bathroom Info

Total Baths:  3.00

Fullbaths:  3

Bedroom Info

Beds:  4

Building Info

New Construction:  No

Year Built:  2025

Mobile Home Remains:  ,No,

Zoning:  RES

Style:  Traditional

Buyer Compensation

Exterior Features

Spa:  No

Financial

Lease Renewal Option:  ,No,

Garage / Parking

Parking Capacity:  6

Garage:  Yes

Carport:  No

Parking Type:  Attached, Garage, ThreeCarGarage

Open Parking:  No

Attached Garage:  Yes

Garage Spaces:  3

Green / Env Info

Interior Features

Fireplace:  No

Furnished:  Unfurnished

Lot Info

Lease Considered:  ,No,

Lease Assignable:  ,No,

Acres:  0.24

Land Lease:  No

Misc

Pool Private:  No

Offer Compensation

Other School Info

Property Info

County:  Horry

View:  No

Senior Community:  No

Stipulation of Sale:  None

Habitable Residence:  ,No,

Property Sub Type Additional:  Detached

Property Attached:  No

Rent Control:  No

Construction:  UnderConstruction

Room Info

Basement:  ,No,

Sold Info

Sqft Info

Building Sqft:  3551

Living Area Source:  Plans

Sqft:  2628

Tax Info

Unit Info

Utilities / Hvac

Electric On Property:  No

Cooling:  No

Heating:  No

Waterfront / Water

Waterfront:  No

Directions

SC-9/Hwy 9 west. Past Hwy 905 and follow for 4.5 miles. Turn left onto Hemingway Road by Crown Park Golf Course. Follow Hemingway Road for 0.5 miles and the Sales Center will be on your left.

Courtesy of Today Homes Realty Sc, Llc 

Mortgage Calculator

%
$
%
Dollars per $1000
$
Approximate Monthly Payment 0.0
On jasongreenrealestate.com since Thu, Jun 5th 2025
No Property History recorded for this listing.

Broker Reciprocity Provided courtesy of © Copyright 2025 Coastal Carolinas Multiple Listing Service, Inc.®. Information Deemed Reliable but Not Guaranteed. © Copyright 2025 Coastal Carolinas Multiple Listing Service, Inc.® MLS. All rights reserved. Information is provided exclusively for consumers’ personal, non-commercial use, that it may not be used for any purpose other than to identify prospective properties consumers may be interested in purchasing. Images related to data from the MLS is the sole property of the MLS and not the responsibility of the owner of this website. MLS IDX data last updated on 10-02-2025 11:45 PM EST.
Any images related to data from the MLS is the sole property of the MLS and not the responsibility of the owner of this website.
This real estate website and IDX data is Powered & Hosted by Dynamic IDX, LLC Real Estate Web Solutions