$499,000 | N/A beds | N/A full baths | N/A half baths | N/A sqft

$485,000
6417 Dick Pond Rd.
Myrtle Beach, SC 29588
  • HCZoning
  • N/ASqFt
  • 6Units
  • N/ASale/Rent
  • N/AWet Lands
  • 3.10Acres
  • MLS# 1602964
  • Commercial
  • Retail
  • Sold

  • Approx Time on Market1 month, 18 days
  • AreaMyrtle Beach Area--Socastee
  • CountyHorry
  • Subdivision N/A

Overview

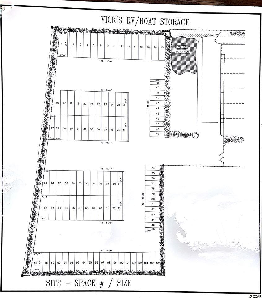
This commercial piece located in Socastee just west of the Waterway, lends itself to many uses. Over 400' frontage on Hwy 544 and over 193' on dick Pond Rd. Six store front units face Dick Pond rd. Excellent history with well established tenants. 32 space parking in front, and 16 space parking in rear of business'. There is a gated, 106 space boat/RV storage lot in the rear of property! This would make an ideal opportunity for an on-site owner operator. Access to storage lot is by security code gate. This is closest boat storage lot to a boat ramp in the area. All bathrooms in business' are ADA compliant. This is a property that will not come for sale often in the south strand area. Not in a designated flood zone or wind and hail zone.



Sale Info

Listing Date: 02-10-2016

Sold Date: 03-29-2016

Aprox Days on Market: 
    1 month(s), 18 day(s)

Listing Sold: 
   9 Year(s), 6 month(s), 9 day(s) ago

Asking Price: $499,000

Selling Price: $485,000

Price Difference: 
Reduced By $14,000

Agriculture / Farm

Grazing Permits Blm:  ,No,

Horse:  No

Grazing Permits Forest Service:  ,No,

Grazing Permits Private:  ,No,

Irrigation Water Rights:  ,No,

Farm Credit Service Incl:  ,No,

Crops Included:  ,No,

Association Fees / Info

Hoa:  No

Bathroom Info

Building Info

New Construction:  No

Num Stories:  1

Levels:  One

Year Built:  2003

Mobile Home Remains:  ,No,

Zoning:  HC

Construction Materials:  MetalSiding

Buyer Compensation

Exterior Features

Spa:  No

Financial

Lease Renewal Option:  ,No,

Garage / Parking

Garage:  No

Carport:  No

Open Parking:  No

Attached Garage:  No

Interior Features

Fireplace:  No

Furnished:  Unfurnished

Lot Info

Lease Considered:  ,No,

Lease Assignable:  ,No,

Acres:  3.10

Lot Size:  193x410x405x222x226

Land Lease:  No

Misc

Pool Private:  No

Offer Compensation

Property Info

County:  Horry

Current Use:  Retail

View:  No

Number of Units Total:  6

Senior Community:  No

Stipulation of Sale:  None

Habitable Residence:  ,No,

Property Sub Type Additional:  Retail

Property Attached:  No

Rent Control:  No

Number of Buildings:  1

Room Info

Basement:  ,No,

Sold Info

Sold Date:  2016-03-29T00:00:00

Sqft Info

Tax Info

Tax Legal Description:  Pine Hollow Lot A, Lot B

Unit Info

Utilities / Hvac

Heating:  Central

Cooling:  CentralAir

Electric On Property:  No

Cooling:  Yes

Sewer:  PublicSewer

Heating:  Yes

Waterfront / Water

Waterfront:  No

Directions

From hwy 544 west: Soon as your cross over the Intracoastal waterway on 544, take the next right on Dick Pond Rd.. Travel 1/2 mile and property will be on your right.

Courtesy of Surfside Realty Co Inc 

Mortgage Calculator

%
$
%
Dollars per $1000
$
Approximate Monthly Payment 0.0
On jasongreenrealestate.com since Wed, Feb 10th 2016
No Property History recorded for this listing.

Broker Reciprocity Provided courtesy of © Copyright 2025 Coastal Carolinas Multiple Listing Service, Inc.®. Information Deemed Reliable but Not Guaranteed. © Copyright 2025 Coastal Carolinas Multiple Listing Service, Inc.® MLS. All rights reserved. Information is provided exclusively for consumers’ personal, non-commercial use, that it may not be used for any purpose other than to identify prospective properties consumers may be interested in purchasing. Images related to data from the MLS is the sole property of the MLS and not the responsibility of the owner of this website. MLS IDX data last updated on 10-08-2025 10:16 AM EST.
Any images related to data from the MLS is the sole property of the MLS and not the responsibility of the owner of this website.
This real estate website and IDX data is Powered & Hosted by Dynamic IDX, LLC Real Estate Web Solutions