$198,935 | 3 beds | 2 full baths | N/A half baths | 1,500 sqft

$201,285
569 Whiddy Loop
Conway, SC 29526
  • 3Beds
  • 2Full Baths
  • N/AHalf Baths
  • 1,500SqFt
  • 2020Year Built
  • 0.19Acres
  • MLS# 2009601
  • Residential
  • Detached
  • Sold


Overview

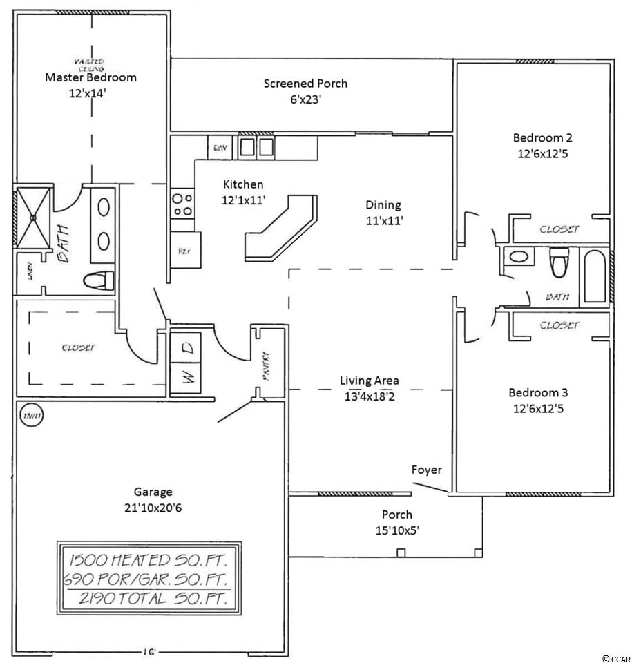
Move-In Ready! Single level 3 bedroom 2 bath ranch style home located in established golf course community. This home features a split floor plan with a spacious, open kitchen, breakfast bar, and granite counter tops. Stainless steel appliances include microwave, smooth top electric range and dishwasher. Solid wood white cabinets with crown molding completes this kitchen. Upgraded luxury, waterproof vinyl plank thru-out main areas of the home. Carpet in the bedrooms and vinyl in the bathrooms and laundry room. Master bedroom suite has a vaulted ceiling with ceiling fan, walk-in closet, raised height vanity with double sinks, 5' walk-in showers and linen closet. 30 year architectural roof shingles, gutters, fully sodded yard and irrigation system. Garage is finished and painted with automatic door opener and pull down stairs to attic storage above. Upgraded interior trim includes 3 1/4"" casings and 5 1/4"" baseboards. Low E glass windows, energy efficient homes. Amazing included features! Free golf (green fees) for life. Easy access to both Myrtle Beach and Conway. Video is for illustrative purposes only and may be of similar house built elsewhere. Square footage is approximate and not guaranteed. Buyer is responsible for verification



Sale Info

Listing Date: 05-12-2020

Sold Date: 09-23-2020

Aprox Days on Market: 
    4 month(s), 10 day(s)

Listing Sold: 
   5 Year(s), 11 day(s) ago

Asking Price: $198,935

Selling Price: $201,285

Price Difference: 
Increase $2,350

Agriculture / Farm

Grazing Permits Blm:  ,No,

Horse:  No

Grazing Permits Forest Service:  ,No,

Grazing Permits Private:  ,No,

Irrigation Water Rights:  ,No,

Farm Credit Service Incl:  ,No,

Crops Included:  ,No,

Association Fees / Info

Hoa Frequency:  Annually

Hoa Fees:  74

Hoa:  1

Hoa Includes:  AssociationManagement, CommonAreas, Golf, LegalAccounting, Pools, RecreationFacilities

Community Features:  Clubhouse, GolfCartsOK, Pool, RecreationArea, Golf, LongTermRentalAllowed

Assoc Amenities:  Clubhouse, OwnerAllowedGolfCart, OwnerAllowedMotorcycle, Pool, PetRestrictions, TenantAllowedGolfCart, TenantAllowedMotorcycle

Bathroom Info

Total Baths:  2.00

Fullbaths:  2

Bedroom Info

Beds:  3

Building Info

New Construction:  Yes

Levels:  One

Year Built:  2020

Mobile Home Remains:  ,No,

Zoning:  Res

Style:  Ranch

Development Status:  NewConstruction

Construction Materials:  VinylSiding

Builders Name:  Creekside Custom Homes

Builder Model:  Pecan 1500

Buyer Compensation

Exterior Features

Spa:  No

Patio and Porch Features:  FrontPorch, Patio, Porch, Screened

Pool Features:  Association, Community

Foundation:  Slab

Exterior Features:  SprinklerIrrigation, Patio

Financial

Lease Renewal Option:  ,No,

Garage / Parking

Parking Capacity:  4

Garage:  Yes

Carport:  No

Parking Type:  Attached, Garage, TwoCarGarage, GarageDoorOpener

Open Parking:  No

Attached Garage:  Yes

Garage Spaces:  2

Green / Env Info

Green Energy Efficient:  Doors, Windows

Interior Features

Floor Cover:  Carpet, Vinyl, Wood

Door Features:  InsulatedDoors

Fireplace:  No

Laundry Features:  WasherHookup

Furnished:  Unfurnished

Interior Features:  Attic, PermanentAtticStairs, SplitBedrooms, BreakfastBar, BedroomonMainLevel, StainlessSteelAppliances, SolidSurfaceCounters

Appliances:  Dishwasher, Disposal, Microwave, Range

Lot Info

Lease Considered:  ,No,

Lease Assignable:  ,No,

Acres:  0.19

Lot Size:  70x120x70x120

Land Lease:  No

Lot Description:  NearGolfCourse, OutsideCityLimits, Rectangular

Misc

Pool Private:  No

Pets Allowed:  OwnerOnly, Yes

Offer Compensation

Other School Info

Property Info

County:  Horry

View:  No

Senior Community:  No

Stipulation of Sale:  None

Property Sub Type Additional:  Detached

Property Attached:  No

Security Features:  SmokeDetectors

Disclosures:  CovenantsRestrictionsDisclosure

Rent Control:  No

Construction:  NeverOccupied

Room Info

Basement:  ,No,

Sold Info

Sold Date:  2020-09-23T00:00:00

Sqft Info

Building Sqft:  2190

Living Area Source:  Builder

Sqft:  1500

Tax Info

Tax Legal Description:  Lot 31

Unit Info

Utilities / Hvac

Heating:  Central, Electric

Cooling:  CentralAir

Electric On Property:  No

Cooling:  Yes

Utilities Available:  CableAvailable, ElectricityAvailable, PhoneAvailable, SewerAvailable, UndergroundUtilities, WaterAvailable

Heating:  Yes

Water Source:  Public

Waterfront / Water

Waterfront:  No

Directions

Enter Shaftesbury Glen on Hwy 905, onto Shaftesbury Lane, right on Dorset Place, right on Putney Court, the model home is on the right, 544 Whiddy Loop.

Courtesy of Creekside Homes Realty  - Cell: 843-457-5093

Mortgage Calculator

%
$
%
Dollars per $1000
$
Approximate Monthly Payment 0.0
On jasongreenrealestate.com since Tue, May 12th 2020
No Property History recorded for this listing.

Broker Reciprocity Provided courtesy of © Copyright 2025 Coastal Carolinas Multiple Listing Service, Inc.®. Information Deemed Reliable but Not Guaranteed. © Copyright 2025 Coastal Carolinas Multiple Listing Service, Inc.® MLS. All rights reserved. Information is provided exclusively for consumers’ personal, non-commercial use, that it may not be used for any purpose other than to identify prospective properties consumers may be interested in purchasing. Images related to data from the MLS is the sole property of the MLS and not the responsibility of the owner of this website. MLS IDX data last updated on 10-04-2025 11:20 AM EST.
Any images related to data from the MLS is the sole property of the MLS and not the responsibility of the owner of this website.
This real estate website and IDX data is Powered & Hosted by Dynamic IDX, LLC Real Estate Web Solutions