$203,380 | 3 beds | 2 full baths | N/A half baths | 1,500 sqft

$203,380
554 Whiddy Loop
Conway, SC 29526
  • 3Beds
  • 2Full Baths
  • N/AHalf Baths
  • 1,500SqFt
  • 2020Year Built
  • 0.25Acres
  • MLS# 2007376
  • Residential
  • Detached
  • Sold


Overview

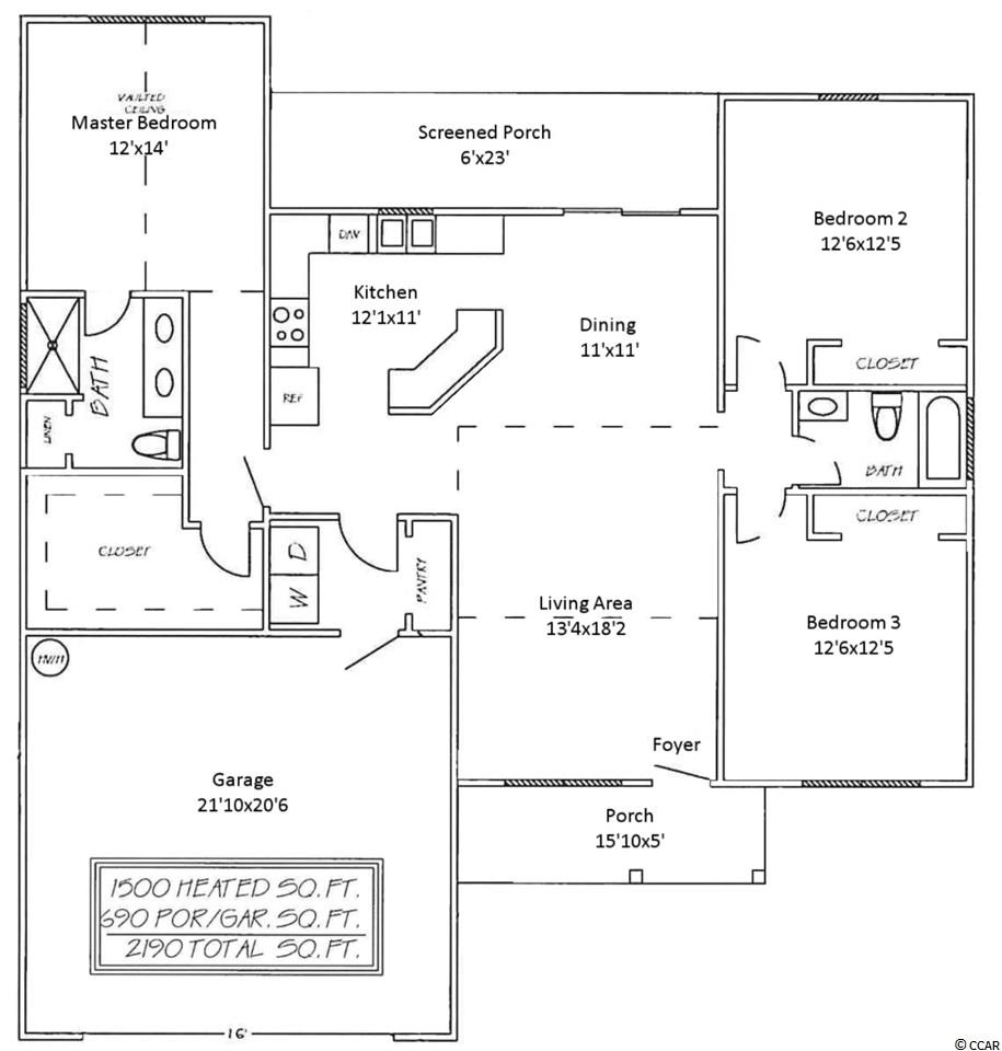
Pecan 1500 plan. Front porch, open floor plan, split bedrooms. Living room has vaulted ceiling, fan w/light, dining area, large kitchen has lots of black, 30"" raised panel door, solid wood cabinets with crown molding and hardware, granite counter tops, single bowl sink, breakfast counter with counter height bar, stainless steel appliances, breakfast counter, pantry closet and laundry room. Spacious master bedroom has vaulted ceiling, fan with light, huge walk-in closet, 5' walk-in shower, garden tub plus separate shower, and raised height vanity with double bowl sinks. High rise commode in guest bathroom. Vinyl flooring thru-out the home. Black storm door and gutters. Rear screen porch and enlarged 10'x23' patio. Beautiful view of the golf course. Upgraded interior trim includes 3 1/4"" casings and 5 1/4"" baseboards. Low E glass windows, energy efficient homes. Finished and painted 2-car garage with automatic door openers, pull down stairs to attic storage. Sodded yard with irrigation system. Amazing included features! Easy access to both Myrtle Beach and Conway. Video is for illustrative purposes only and may be of similar house built elsewhere. Square footage is approximate and not guaranteed. Buyer is responsible for verification



Sale Info

Listing Date: 04-02-2020

Sold Date: 08-28-2020

Aprox Days on Market: 
    4 month(s), 25 day(s)

Listing Sold: 
   5 Year(s), 1 month(s), 8 day(s) ago

Asking Price: $203,380

Selling Price: $203,380

Price Difference: 
Same as list price

Agriculture / Farm

Grazing Permits Blm:  ,No,

Horse:  No

Grazing Permits Forest Service:  ,No,

Grazing Permits Private:  ,No,

Irrigation Water Rights:  ,No,

Farm Credit Service Incl:  ,No,

Crops Included:  ,No,

Association Fees / Info

Hoa Frequency:  Annually

Hoa Fees:  74

Hoa:  1

Hoa Includes:  AssociationManagement, CommonAreas, Golf, Insurance, LegalAccounting, Pools, RecreationFacilities

Community Features:  Clubhouse, GolfCartsOK, Pool, RecreationArea, Golf, LongTermRentalAllowed

Assoc Amenities:  Clubhouse, OwnerAllowedGolfCart, OwnerAllowedMotorcycle, Pool, PetRestrictions, TenantAllowedGolfCart, TenantAllowedMotorcycle

Bathroom Info

Total Baths:  2.00

Fullbaths:  2

Bedroom Info

Beds:  3

Building Info

New Construction:  Yes

Levels:  One

Year Built:  2020

Mobile Home Remains:  ,No,

Zoning:  Res

Style:  Ranch

Development Status:  NewConstruction

Construction Materials:  VinylSiding

Builders Name:  Creekside Custom Homes

Builder Model:  Pecan 1500

Buyer Compensation

Exterior Features

Spa:  No

Patio and Porch Features:  FrontPorch, Patio, Porch, Screened

Pool Features:  Association, Community

Foundation:  Slab

Exterior Features:  SprinklerIrrigation, Patio

Financial

Lease Renewal Option:  ,No,

Garage / Parking

Parking Capacity:  4

Garage:  Yes

Carport:  No

Parking Type:  Attached, Garage, TwoCarGarage, GarageDoorOpener

Open Parking:  No

Attached Garage:  Yes

Garage Spaces:  2

Green / Env Info

Green Energy Efficient:  Doors, Windows

Interior Features

Floor Cover:  Vinyl

Door Features:  InsulatedDoors

Fireplace:  No

Laundry Features:  WasherHookup

Furnished:  Unfurnished

Interior Features:  Attic, PermanentAtticStairs, SplitBedrooms, BreakfastBar, BedroomonMainLevel, StainlessSteelAppliances, SolidSurfaceCounters

Appliances:  Dishwasher, Disposal, Microwave, Range

Lot Info

Lease Considered:  ,No,

Lease Assignable:  ,No,

Acres:  0.25

Lot Size:  71x120x114x120

Land Lease:  No

Lot Description:  NearGolfCourse, OutsideCityLimits, OnGolfCourse, Rectangular

Misc

Pool Private:  No

Pets Allowed:  OwnerOnly, Yes

Offer Compensation

Other School Info

Property Info

County:  Horry

View:  No

Senior Community:  No

Stipulation of Sale:  None

Property Sub Type Additional:  Detached

Property Attached:  No

Security Features:  SmokeDetectors

Disclosures:  CovenantsRestrictionsDisclosure

Rent Control:  No

Construction:  NeverOccupied

Room Info

Basement:  ,No,

Sold Info

Sold Date:  2020-08-28T00:00:00

Sqft Info

Building Sqft:  2190

Living Area Source:  Builder

Sqft:  1500

Tax Info

Tax Legal Description:  Lot 6

Unit Info

Utilities / Hvac

Heating:  Central, Electric

Cooling:  CentralAir

Electric On Property:  No

Cooling:  Yes

Utilities Available:  CableAvailable, ElectricityAvailable, PhoneAvailable, SewerAvailable, UndergroundUtilities, WaterAvailable

Heating:  Yes

Water Source:  Public

Waterfront / Water

Waterfront:  No

Directions

Enter Shaftesbury Glen on Hwy 905, onto Shaftesbury Lane, right on Dorset Place, right on Putney Court, the model home is on the right.

Courtesy of Creekside Homes Realty  - Cell: 843-457-5093

Mortgage Calculator

%
$
%
Dollars per $1000
$
Approximate Monthly Payment 0.0
On jasongreenrealestate.com since Thu, Apr 2nd 2020
No Property History recorded for this listing.

Broker Reciprocity Provided courtesy of © Copyright 2025 Coastal Carolinas Multiple Listing Service, Inc.®. Information Deemed Reliable but Not Guaranteed. © Copyright 2025 Coastal Carolinas Multiple Listing Service, Inc.® MLS. All rights reserved. Information is provided exclusively for consumers’ personal, non-commercial use, that it may not be used for any purpose other than to identify prospective properties consumers may be interested in purchasing. Images related to data from the MLS is the sole property of the MLS and not the responsibility of the owner of this website. MLS IDX data last updated on 10-06-2025 4:37 PM EST.
Any images related to data from the MLS is the sole property of the MLS and not the responsibility of the owner of this website.
This real estate website and IDX data is Powered & Hosted by Dynamic IDX, LLC Real Estate Web Solutions