$25,125 | N/A beds | N/A full baths | N/A half baths | 33,500 sqft

$25,125
1366 17th Ave. S UNIT Lot 15
Myrtle Beach, SC 29577
  • N/ABeds
  • N/AFull Baths
  • N/AHalf Baths
  • 33,500SqFt
  • 2020Year Built
  • 2.28Acres
  • MLS# 2011737
  • Commercial Lease
  • Industrial
  • Sold

  • Approx Time on Market3 months, 11 days
  • AreaMyrtle Beach Area--Southern Limit To 10th Ave N
  • CountyHorry
  • Subdivision North Industrial Park

Overview

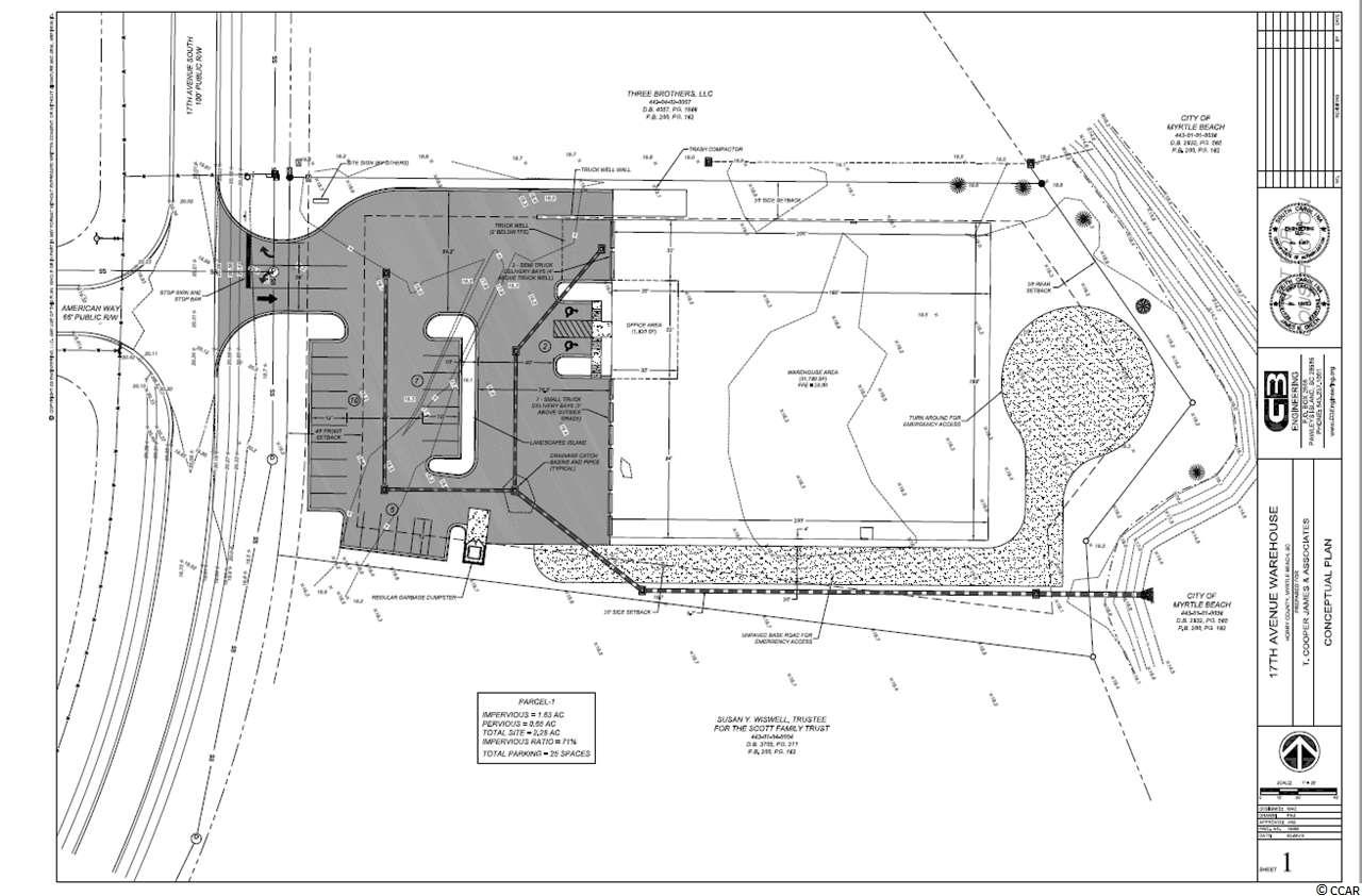
Brand new building currently under construction in the highly desired North Industrial park area. For lease +/- 33,500 SF office/warehouse on 2.28 acres. The building will feature approximately 1,200 to 1,500 SF of conditioned office space. The interior office space will contain two restrooms, a finished ceiling, lighting, flooring, and painted walls. The remaining portion will be a fully insulated, climate-controlled warehouse with 24 ceilings, (4) 10 overhead doors, 4 loading docks total: two loading bays for long haul and two additional bays for short haul trucks. 21 parking spaces. Expected completion late summer/fall 2020. The building will be delivered with landscaping, driveways, and parking lot. Property taxes and insurance to be paid by tenant. The tenant will also be required to maintain the grounds and parking lot. Expected completion late summer/ early fall 2020. Don't miss your opportunity to be located in Myrtle Beach's most sought after industrial park with convenient access to all major thoroughfares. North Industrial Parks location has easy access to Highway 17 Bypass, 17 Business, Highway 501, Hwy 31, Hwy 22 and Myrtle Beach International Airport. Highlights +/- 33,500 SF Office/Warehouse 2.28 acres 4 loading docks: 2 Short Haul; 2 Long Haul Loading Bays 24 Ceilings (4) 10 Overhear Doors 21 Parking Spaces 2.28 acres; 200 of Frontage



Sale Info

Listing Date: 06-03-2020

Sold Date: 09-15-2020

Aprox Days on Market: 
    3 month(s), 11 day(s)

Listing Sold: 
   5 Year(s), 22 day(s) ago

Asking Price: $25,125

Selling Price: $25,125

Price Difference: 
Same as list price

Agriculture / Farm

Grazing Permits Blm:  ,No,

Horse:  No

Grazing Permits Forest Service:  ,No,

Grazing Permits Private:  ,No,

Irrigation Water Rights:  ,No,

Farm Credit Service Incl:  ,No,

Crops Included:  ,No,

Association Fees / Info

Hoa:  No

Assoc Amenities:  Storage

Bathroom Info

Building Info

New Construction:  No

Num Stories:  1

Levels:  One

Year Built:  2020

Mobile Home Remains:  ,No,

Zoning:  LM

Building Features:  DriveInDoors, LoadingDock, Office, PrivateRestrooms, ReceptionArea

Construction Materials:  BrickVeneer, MetalSiding, Stucco

Buyer Compensation

Exterior Features

Spa:  No

Window Features:  DisplayWindows

Exterior Features:  SprinklerIrrigation, Storage

Financial

Lease Renewal Option:  ,No,

Lease Term:  Item5Years

Garage / Parking

Parking Capacity:  21

Garage:  No

Carport:  No

Open Parking:  No

Attached Garage:  No

Interior Features

Fireplace:  No

Interior Features:  Storage

Lot Info

Lease Considered:  Yes

Lease Assignable:  ,No,

Acres:  2.28

Lot Size:  399X204X436X297

Land Lease:  No

Misc

Pool Private:  No

Offer Compensation

Property Info

County:  Horry

Current Use:  Office

View:  No

Number of Units Total:  1

Senior Community:  No

Stipulation of Sale:  None

Habitable Residence:  ,No,

Property Sub Type Additional:  Industrial

Property Attached:  No

Security Features:  FireAlarm, FireSprinklerSystem

Rent Control:  No

Number of Buildings:  1

Room Info

Basement:  ,No,

Sold Info

Sold Date:  2020-09-15T00:00:00

Sqft Info

Sqft:  33500

Tax Info

Tax Legal Description:  NIP; Lot 15

Unit Info

Unit:  Lot 15

Utilities / Hvac

Heating:  Central

Cooling:  CentralAir

Electric On Property:  No

Cooling:  Yes

Sewer:  PublicSewer

Electric:  Item3Phase

Heating:  Yes

Waterfront / Water

Waterfront:  No

Directions

Located in North Industrial Park on 17th Ave South between Dividend Loop & American Way. In between Gateway & Coastal Fasteners.

Courtesy of Tideland Commercial 

Mortgage Calculator

%
$
%
Dollars per $1000
$
Approximate Monthly Payment 0.0
On jasongreenrealestate.com since Wed, Jun 3rd 2020
No Property History recorded for this listing.

Broker Reciprocity Provided courtesy of © Copyright 2025 Coastal Carolinas Multiple Listing Service, Inc.®. Information Deemed Reliable but Not Guaranteed. © Copyright 2025 Coastal Carolinas Multiple Listing Service, Inc.® MLS. All rights reserved. Information is provided exclusively for consumers’ personal, non-commercial use, that it may not be used for any purpose other than to identify prospective properties consumers may be interested in purchasing. Images related to data from the MLS is the sole property of the MLS and not the responsibility of the owner of this website. MLS IDX data last updated on 10-07-2025 2:38 PM EST.
Any images related to data from the MLS is the sole property of the MLS and not the responsibility of the owner of this website.
This real estate website and IDX data is Powered & Hosted by Dynamic IDX, LLC Real Estate Web Solutions