$159,900 | N/A beds | N/A full baths | N/A half baths | 800 sqft

$156,200
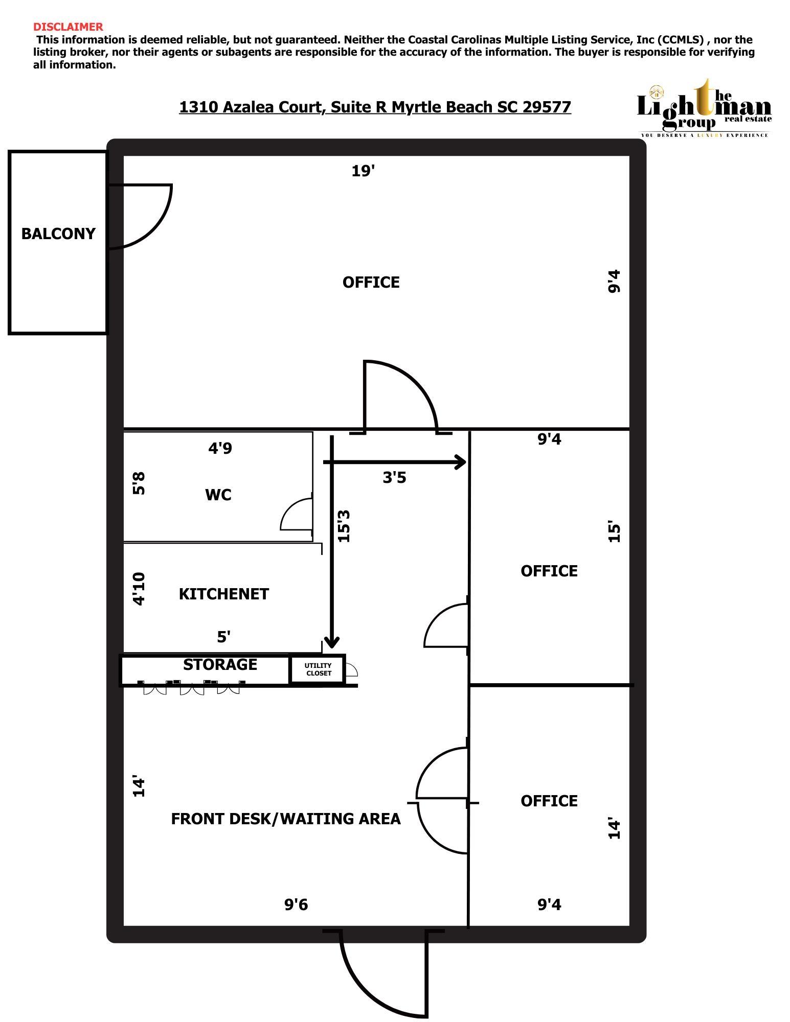
1310 Azalea Ct. UNIT Suite R
Myrtle Beach, SC 29577
  • COMZoning
  • 800SqFt
  • 1Units
  • N/ASale/Rent
  • N/AWet Lands
  • 0.17Acres
  • MLS# 2503267
  • Commercial
  • Office
  • Sold

  • Approx Time on Market2 months, 1 day
  • AreaMyrtle Beach Area--29th Ave N To 48th Ave N
  • CountyHorry
  • Subdivision Azalea Woods

Overview

Well appointed office suite. Offers a reception/front desk area, three private office spaces a kitchenet, a bathroom. This office space is on the second floor with stairs on the right side of the building. Building offers 45+ parking spaces as well as handicap parking spaces. Get this prime location for your office space before it's gone! located in the Financial, professional district of Myrtle Beach. Off 38th Ave N. between Robert Grissom Parkway and Highway 17 Bypass with easy access to Highway 31.



Sale Info

Listing Date: 02-08-2025

Sold Date: 04-10-2025

Aprox Days on Market: 
    2 month(s), 1 day(s)

Listing Sold: 
    5 month(s), 23 day(s) ago

Asking Price: $170,000

Selling Price: $156,200

Price Difference: 
Reduced By $3,700

Agriculture / Farm

Grazing Permits Blm:  ,No,

Horse:  No

Grazing Permits Forest Service:  ,No,

Grazing Permits Private:  ,No,

Irrigation Water Rights:  ,No,

Farm Credit Service Incl:  ,No,

Crops Included:  ,No,

Association Fees / Info

Hoa:  No

Bathroom Info

Building Info

New Construction:  No

Num Stories:  1

Levels:  One

Year Built:  1985

Mobile Home Remains:  ,No,

Zoning:  COM

Building Features:  Office, ReceptionArea

Buyer Compensation

Exterior Features

Spa:  No

Financial

Lease Renewal Option:  ,No,

Garage / Parking

Garage:  No

Carport:  No

Open Parking:  No

Attached Garage:  No

Interior Features

Fireplace:  No

Lot Info

Lease Considered:  ,No,

Lease Assignable:  ,No,

Acres:  0.17

Land Lease:  No

Misc

Pool Private:  No

Offer Compensation

Property Info

County:  Horry

Current Use:  Office

View:  No

Number of Units Total:  1

Senior Community:  No

Stipulation of Sale:  None

Habitable Residence:  ,No,

Property Sub Type Additional:  Office

Property Attached:  No

Disclosures:  SellerDisclosure

Rent Control:  No

Room Info

Basement:  ,No,

Sold Info

Sold Date:  2025-04-10T00:00:00

Sqft Info

Sqft:  800

Tax Info

Unit Info

Unit:  Suite R

Utilities / Hvac

Heating:  Central

Cooling:  CentralAir

Electric On Property:  No

Cooling:  Yes

Sewer:  PublicSewer

Heating:  Yes

Waterfront / Water

Waterfront:  No

Directions

Turn onto 38th Ave from 17 Bypass. Turn left on Oleander. In about a mile turn left onto Azalea Court. Keep right, Building 1310 second floor, take the right side stair set

Courtesy of The Lightman Group 

Mortgage Calculator

%
$
%
Dollars per $1000
$
Approximate Monthly Payment 0.0
On jasongreenrealestate.com since Sat, Feb 8th 2025
No Property History recorded for this listing.

Broker Reciprocity Provided courtesy of © Copyright 2025 Coastal Carolinas Multiple Listing Service, Inc.®. Information Deemed Reliable but Not Guaranteed. © Copyright 2025 Coastal Carolinas Multiple Listing Service, Inc.® MLS. All rights reserved. Information is provided exclusively for consumers’ personal, non-commercial use, that it may not be used for any purpose other than to identify prospective properties consumers may be interested in purchasing. Images related to data from the MLS is the sole property of the MLS and not the responsibility of the owner of this website. MLS IDX data last updated on 10-03-2025 11:20 PM EST.
Any images related to data from the MLS is the sole property of the MLS and not the responsibility of the owner of this website.
This real estate website and IDX data is Powered & Hosted by Dynamic IDX, LLC Real Estate Web Solutions