$346,620
10019 W Highway 19
Loris, SC 29569
  • 3Beds
  • 2Full Baths
  • N/AHalf Baths
  • 1,862SqFt
  • 2023Year Built
  • 2.25Acres
  • MLS# 2215078
  • Residential
  • Detached
  • Sold

  • Approx Time on Market8 months, 9 days
  • AreaLoris To Conway Area--South of Loris Above Rt. 22
  • CountyHorry
  • Subdivision Mt. Pillar Estates

Overview

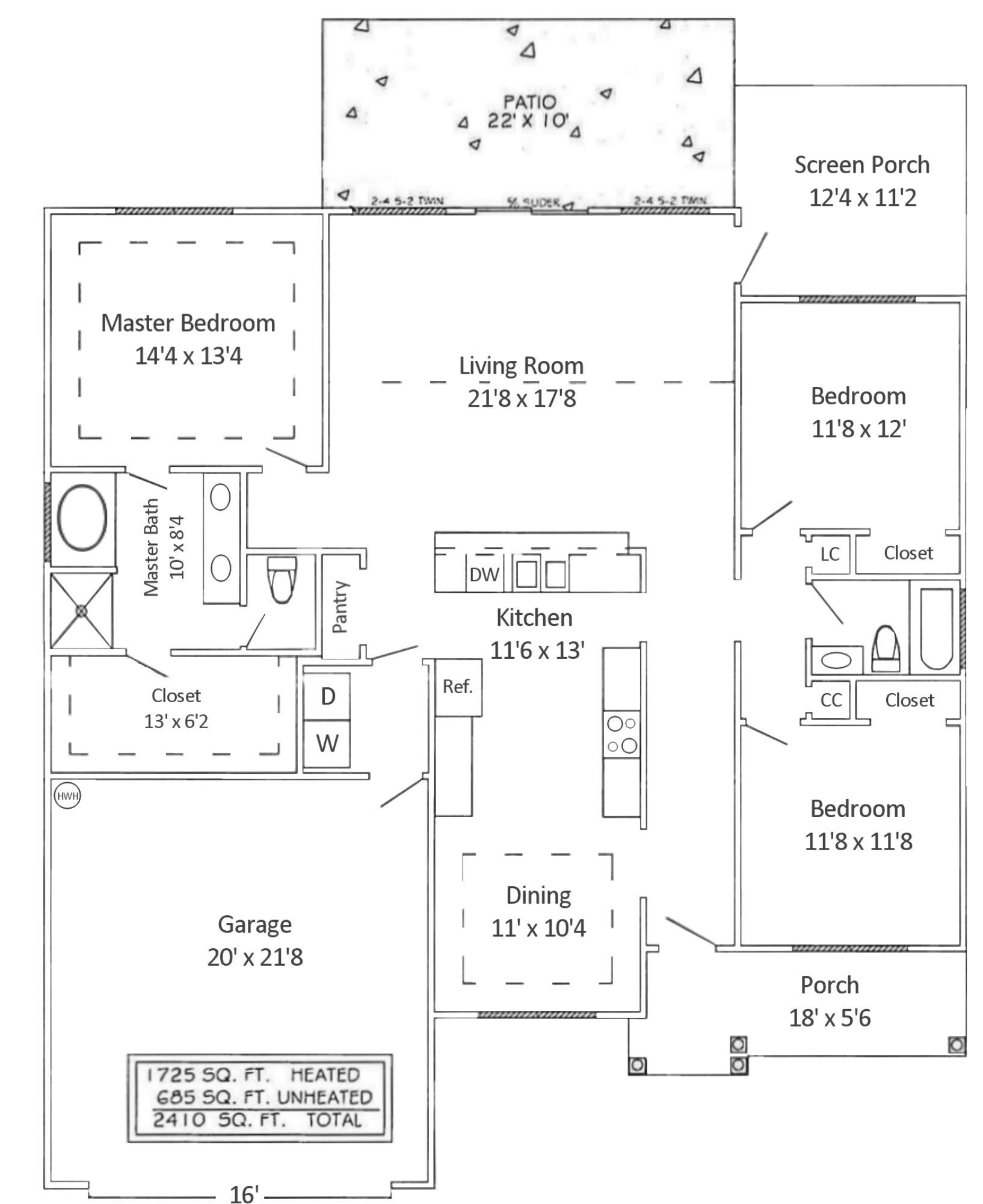
2.25 acres with No HOA. Basic Deed Restrictions. Can park your RV or Boat on your property. Enjoy the peace and quiet of small-town living in your open floor plan with a dining room that has a tray ceiling and ceiling fan, the living room has an abundance of windows, a vaulted ceiling with a ceiling fan, and light and 4 recessed lights. The sunroom is light and bright with a spectacular view of the premium lot it sits on, and also has a ceiling fan with light and an additional outlet. The large kitchen has solid wood white shaker style cabinets with crown molding and granite countertops. Single bowl stainless steel sink, large pantry closet, stainless steel appliances include a microwave, dishwasher, and electric range. Enjoy this split bedroom floor plan which features a luxurious master bedroom with a ceiling fan with light. The ensuite has a raised height double vanity and a huge walk-in closet, 5' walk-in tile shower and a linen closet. Stunning LVP flooring thru-out the common areas, ceramic tile in both bathrooms, and carpet in the bedrooms. Blinds package is included. 30-year architectural roof shingles, Interior trim included 3 1/4"" inch casings and 5 1/4"" baseboards throughout. Low E glass windows, spacious, finished and painted 2-car garage with automatic door openers, and pull down stairs to floored attic storage. Gutters, sodded yard, and irrigation system. Enjoy the peace and quiet of small-town living, conveniently located and just minutes from downtown Loris, Nature Park, shopping, restaurants, and hospital. Desired Green Sea Floyds school district! Video is for illustrative purposes only and may be of a similar house built elsewhere. Square footage is approximate and not guaranteed. The buyer is responsible for verification.



Sale Info

Listing Date: 06-21-2022

Sold Date: 03-03-2023

Aprox Days on Market: 
    8 month(s), 9 day(s)

Listing Sold: 
   2 Year(s), 7 month(s), 1 day(s) ago

Asking Price: $346,620

Selling Price: $346,620

Price Difference: 
Same as list price

Agriculture / Farm

Grazing Permits Blm:  ,No,

Horse:  No

Grazing Permits Forest Service:  ,No,

Grazing Permits Private:  ,No,

Irrigation Water Rights:  ,No,

Farm Credit Service Incl:  ,No,

Crops Included:  ,No,

Association Fees / Info

Hoa Frequency:  NotApplicable

Hoa:  No

Community Features:  GolfCartsOK, LongTermRentalAllowed

Assoc Amenities:  OwnerAllowedGolfCart, OwnerAllowedMotorcycle, PetRestrictions, TenantAllowedGolfCart, TenantAllowedMotorcycle

Bathroom Info

Total Baths:  2.00

Fullbaths:  2

Bedroom Info

Beds:  3

Building Info

New Construction:  Yes

Levels:  One

Year Built:  2023

Mobile Home Remains:  ,No,

Zoning:  Res

Style:  Ranch

Development Status:  NewConstruction

Construction Materials:  VinylSiding

Builders Name:  Creekside Homes LLC

Builder Model:  Hemlock Alt

Buyer Compensation

Exterior Features

Spa:  No

Patio and Porch Features:  FrontPorch, Patio

Foundation:  Slab

Exterior Features:  SprinklerIrrigation, Patio

Financial

Lease Renewal Option:  ,No,

Garage / Parking

Parking Capacity:  6

Garage:  Yes

Carport:  No

Parking Type:  Attached, Garage, TwoCarGarage, GarageDoorOpener

Open Parking:  No

Attached Garage:  Yes

Garage Spaces:  2

Green / Env Info

Green Energy Efficient:  Doors, Windows

Interior Features

Floor Cover:  Carpet, LuxuryVinylPlank, Tile

Door Features:  InsulatedDoors

Fireplace:  No

Laundry Features:  WasherHookup

Furnished:  Unfurnished

Interior Features:  Attic, PermanentAtticStairs, SplitBedrooms, WindowTreatments, BreakfastBar, BedroomonMainLevel, EntranceFoyer, StainlessSteelAppliances, SolidSurfaceCounters

Appliances:  Dishwasher, Microwave, Range

Lot Info

Lease Considered:  ,No,

Lease Assignable:  ,No,

Acres:  2.25

Lot Size:  172x578x172x560

Land Lease:  No

Lot Description:  Item1orMoreAcres, OutsideCityLimits, Rectangular

Misc

Pool Private:  No

Pets Allowed:  OwnerOnly, Yes

Offer Compensation

Other School Info

Property Info

County:  Horry

View:  No

Senior Community:  No

Stipulation of Sale:  None

Property Sub Type Additional:  Detached

Property Attached:  No

Security Features:  SmokeDetectors

Disclosures:  CovenantsRestrictionsDisclosure

Rent Control:  No

Construction:  NeverOccupied

Room Info

Basement:  ,No,

Sold Info

Sold Date:  2023-03-03T00:00:00

Sqft Info

Building Sqft:  2410

Living Area Source:  Builder

Sqft:  1862

Tax Info

Unit Info

Utilities / Hvac

Heating:  Central, Electric, Propane

Cooling:  CentralAir

Electric On Property:  No

Cooling:  Yes

Sewer:  SepticTank

Utilities Available:  CableAvailable, ElectricityAvailable, PhoneAvailable, SepticAvailable, UndergroundUtilities

Heating:  Yes

Water Source:  Private, Well

Waterfront / Water

Waterfront:  No

Directions

Hwy 701 N - West onto West Hwy 19, at the intersection of Hodge Dr. and Scarbrough Dr. Sign on the property.

Courtesy of Creekside Homes Realty  - Cell: 843-457-5093

Mortgage Calculator

%
$
%
Dollars per $1000
$
Approximate Monthly Payment 0.0
On jasongreenrealestate.com since Tue, Jun 21st 2022
No Property History recorded for this listing.

Broker Reciprocity Provided courtesy of © Copyright 2025 Coastal Carolinas Multiple Listing Service, Inc.®. Information Deemed Reliable but Not Guaranteed. © Copyright 2025 Coastal Carolinas Multiple Listing Service, Inc.® MLS. All rights reserved. Information is provided exclusively for consumers’ personal, non-commercial use, that it may not be used for any purpose other than to identify prospective properties consumers may be interested in purchasing. Images related to data from the MLS is the sole property of the MLS and not the responsibility of the owner of this website. MLS IDX data last updated on 10-04-2025 12:20 PM EST.
Any images related to data from the MLS is the sole property of the MLS and not the responsibility of the owner of this website.
This real estate website and IDX data is Powered & Hosted by Dynamic IDX, LLC Real Estate Web Solutions